wgn

Mieszkanie na sprzedaż Lublin - Mieszkanie 41,57m2 w nowoczesnym budynku, Wrotków

Mieszkania sprzedaż, lubelskie, Lublin , Wrotków

Dodano: ponad 14 dni temu

Opis ogłoszenia:

sygnatura: SM088-289

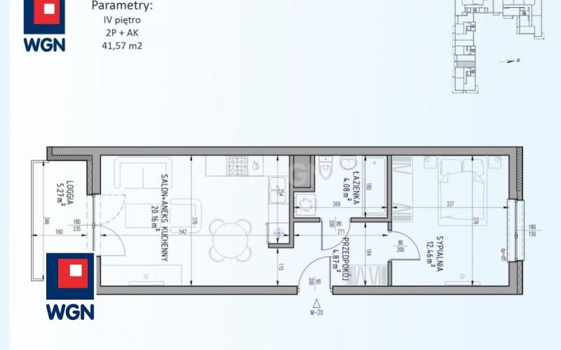
Na sprzedaż: mieszkanie 2-pokojowe z balkonem, 41,57m2, Dzielnica Wrotków

Lokalizacja: nowo wybudowane osiedle.
Powierzchnia mieszkania: 41,57m2
Piętro: 4
Liczba pokoi: 2 + aneks kuchenny
Balkon: tak
Ogrzewanie: miejskie

Opis nieruchomości:
Oferujemy na sprzedaż mieszkanie nr 020 o powierzchni 41,57m2, zlokalizowane na parterze nowoczesnego budynku na dzielnicy Wrotków. W skład mieszkania wchodzi przestronny salon z aneksem kuchennym, sypialnia, łazienka oraz przedpokój.

Najważniejsze zalety:
* funkcjonalny i nowoczesny układ pomieszczeń
* nowoczesna architektura budynku
* dostępne miejsca postojowe
* dostępne komórki lokatorskie ( 4000/m2)
*oddanie budynku 2 kwartał 2026r

Lokalizacja i otoczenie
Położenie: południowa część Lublina, tuż przy Zalewie Zemborzyckim i w pobliżu Lasu Dąbrowa, oferuje spokój, ciszę i kontakt z naturą, z dala od zgiełku miasta
Doskonały dostęp do terenów rekreacyjnych: ścieżki rowerowe, trasy biegowe, infrastruktura sportów wodnych, alejki spacerowe, trasa rowerowa okalająca Zalew oraz trasa wzdłuż ul. Zemborzyckiej
Lokalizacja spokojna, ale z dobrym dojazdem do centrum (ok. 5,4 km) i pobliską komunikacją miejską: np. przystanek (Żeglarska) w odległości ok. 1,6 km, dworzec Lublin Główny ok. 5-6 km

Architektura i układ osiedla
Kompleks składa się budynków mieszkalnych o prostej, nowoczesnej bryle, jasnej kolorystyce elewacji, przeszklonych balkonach, harmonijnie wpisuje się w otaczającą zieleń
Powierzchnie mieszkań: od 37 do 66 m2, dostępne układy: 2-, 3-pokojowe
W budynkach zaplanowano mieszkania w stanie deweloperskim, z możliwością wykończenia pod klucz.

Udogodnienia i infrastruktura
Budynki wyposażone w windy cichobieżne, udogodnienia dla osób z niepełnosprawnością
Miejsca parkingowe: zarówno podziemne, jak i naziemne, dostępne komórki lokatorskie.
Przestrzeń wspólna: starannie zaprojektowana zieleń, chodniki, drogi dojazdowe, stojaki rowerowe, place zabaw dla dzieci, strefy sportu
Lokale usługowe na parterach z przeszklonymi witrynami, przystosowane dla osób z niepełnosprawnościami.

Zapraszam do kontaktu w celu uzyskania szczegółowych informacji lub umówienia prezentacji nieruchomości.
0% prowizji od kupującego!
Bez podatku PCC!


Wszelkie informacje dotyczące oferty mieszkań przesyłamy Państwu na wskazany adres e-mail po zgłoszeniu telefonicznym lub e-mailowym.
Otrzymacie Państwo: prospekt informacyjny, wzór umowy deweloperskiej, rzuty kondygnacji.

Istnieje możliwość rezerwacji na 7 dni bezpłatnie w celu zapoznania się ze szczegółami inwestycji.
Naszym klientom zapewniamy doradztwo kredytowe oraz zespół doświadczonych projektantów wnętrz.

Informacje o nieruchomości zostały sporządzone na podstawie oświadczeń i nie są ofertą w rozumieniu przepisów prawa. Mają wyłącznie charakter informacyjny i mogą podlegać aktualizacji. Zalecamy ich osobistą weryfikację - https://tbv.pl/osiedle-regaty/. Wszelkie prawa zastrzeżone. Teksty, rysunki, zdjęcia oraz inne informacje opublikowane na niniejszych stronach podlegają prawom autorskim WGN Nieruchomości w Lublinie. Wszelkie kopiowanie, dystrybucja, elektroniczne przetwarzanie oraz przesyłanie zawartości bez zezwolenia są zabronione. WGN zapewnia rynkowe ceny, bezpieczeństwo korzystnej transakcji, doradztwo kredytowe oraz pomoc notariusza. Wyróżniamy się pełnym zaangażowaniem, ekspercką wiedzą i najwyższym poziomem usług opartych na ponad 30-letnim doświadczeniu na rynku nieruchomości w Polsce. Stosujemy System Jakości ZJ WGN oraz Kodeks Etyki Zawodowej Polskiej Federacji Rynku Nieruchomości.
Więcej ciekawych ofert znajdziesz na www.wgn.pl

Średnie ceny w tej lokalizacji: 10 752,05 zł/m²

Licznik odsłon: 432

tel. +48 5
kom.: +48 5 pokaż
numer

oferta bezpośrednia

- 0% prowizji

Podstawowe Informacje:

Lokalizacja: Lublin Wrotków
448 956
Cena /m² 10 800
Rodzaj mieszkanie w nowym budynku
Rynek pierwotny
Powierzchnia 41,57 m²
Ilość pokoi 2
Piętro 4
Ilość kondygnacji 7
Rok budowy 2026
Stan techniczny deweloperskie
Wystawa Okien południowy wschód

Media

woda, prąd, kanalizacja, ogrzewanie

Dodatkowe Informacje

garaż / miejsca parkingowe, winda, balkon / taras / loggia, piwnica

Lokalizacja na mapie:


wgnLublin

Aneta Świrydo

e-mail: aneta.swirydo@wgn.pl

tel.: +48 507 652 297

tel.kom.: +48 507 652 297

Adres biura:

ul. Grottgera 8

20-029, Lublin, Polska


Interesuje Mnie ta oferta

Zostało jeszcze: znaków

Mieszkania na sprzedaż: Lublin - aktualne oferty

Oceń nasz serwis

średnia ocen: 4,3

Ten serwis korzysta z mechanizmów cookies (ciasteczka)

| Polityka Cookies